Иркутск, Университетский м-н, улица Эдуарда Дьяконова, 10 / проезд Юрия Тена, 14/8 стр
Площадь
Жилая
Кухня
Отделка
Класс жилья
Комнат
Номер кв.
Этаж
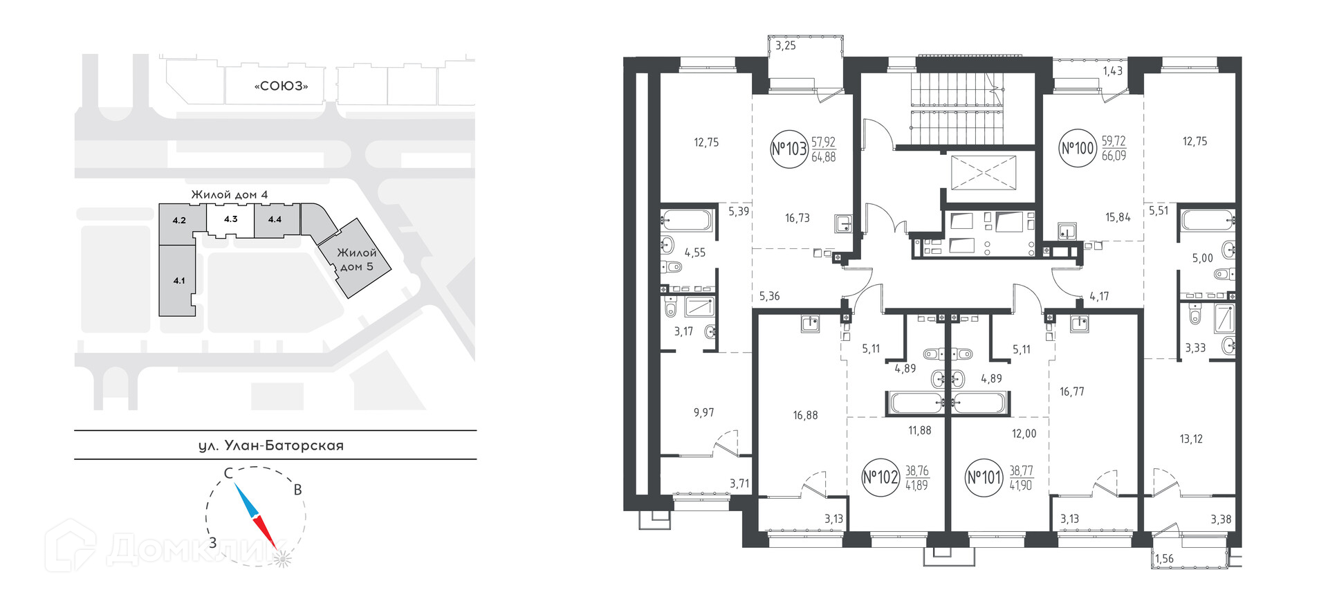
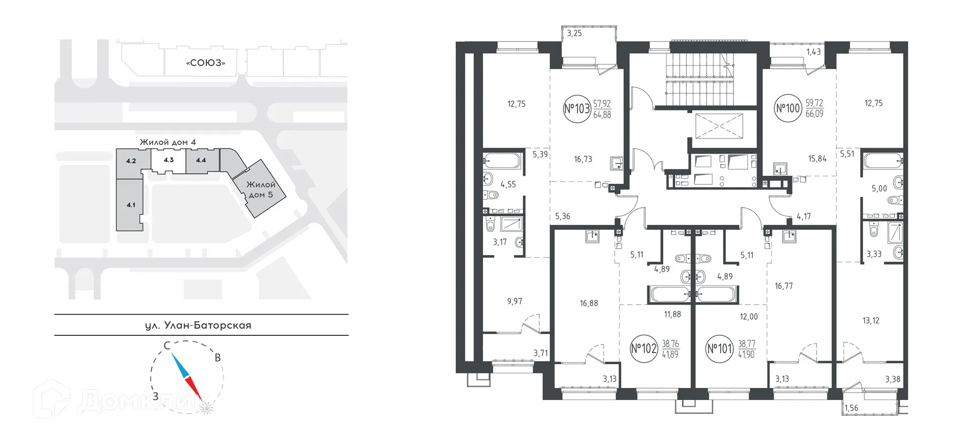
Доступна к покупке 2-комнатная квартира в востребованном жилом комплексе "ЖК "СОЮЗ PRIORITY"(Союз Приорити)" 🏢. Квартира расположена на 6-м этаже 10-этажного дома. Отличный вариант для комфортной жизни.
Чтобы узнать подробности и проверить актуальную стоимость — свяжитесь с нами прямо сейчас! 📞
4 дом СОЮЗ PRIORITY - Особенное пространство, отличающееся своей приватностью и функционалом от всего объема жилого комплекса СОЮЗ PRIORITY. Чтобы каждый, кто предпочитает более камерный формат жилья чувствовал себя дома. Дом высотой 9 этажей с общественными помещениями – лобби, комьюнити центром и подземным паркингом, доступным только для резидентов. Дворовая территория жилого квартала закрыта для доступа посторонних лиц и обеспечена многоуровневой системой охраны и контроля доступа во двор и в подъезды. Композиция и цветовое решение фасадов создают современный динамичный городской облик. Сочетание фактур декоративного камня с композитными панелями придает визуальному образу жилого комплекса совершенно особенный характер. *Цена актуальна при условии 100% оплаты или с помощью обычной (не субсидированной) ипотеки.
Срок сдачи: 4 кв. 2025 г.
Срок сдачи: 4 кв. 2025 г.
Площади квартир
Этажность
Класс жилья
Корпусов
Стены