Иркутск, Марии Ульяновой, 25а
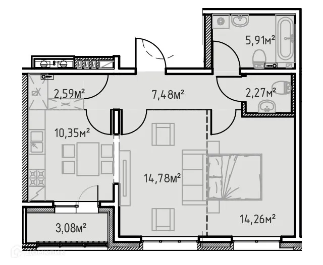
Площадь
Жилая
Кухня
Отделка
Класс жилья
Комнат
Номер кв.
Этаж
Доступна к покупке 2-комнатная квартира в новом жилом комплексе "ЖК "Zenith (Зенит)"" 🏢. Квартира расположена на 1-м этаже 14-этажного дома. Прекрасный выбор для комфортной жизни.
Чтобы узнать подробности и проверить актуальную стоимость — позвоните нам прямо сейчас! 📞
ZENITH Это жилой комплекс бизнес-класса, который расположен во Втором Иркутске (Иркутск 2) на пересечении улиц Мира и Сибирских Партизан. 3 очередь строительства – это последняя блок-секция, возводимая в рамках ЖК ZENITH, вы не будете жить на вечной стройке. В 2026 году будет построен Торговый Центр ZENITH, вся необходимая коммерческая инфраструктура будет в шаговой доступности, а именно кафе, магазины, супермаркет, фитнес-клуб. Также шаговой доступности 3 детских садика, школа №49 и гимназия №3, новая детская поликлиника, аптеки, остановки общественного транспорта. Преимущества ЖК «ZENITH»: закрытая территория и системы контроля доступа консьерж-сервис видеонаблюдение кладовые безопасный двор без машин современные детские и спортивные площадки колясочная и комната матери и ребенка парковка только для жителей комплекса В каждой квартире: Увеличенные окна высотой 170 см. Периметральная разводка отопления и нет стояков возле окон, мешающих размещению мебели. Высота потолков 2,75 м. Лоджии с распашными окнами. Надежная входная дверь (не требует замены). Установленные счетчики на тепло, воду и электричество.
Срок сдачи: 3 кв. 2023 г.
Срок сдачи: 3 кв. 2023 г.
Площади квартир
Тип жилья
Этажность
Класс жилья
Корпусов
Стены