Иркутск, Академгородок м-н, Старо-Кузьмихинская
Площадь
Жилая
Кухня
Отделка
Класс жилья
Комнат
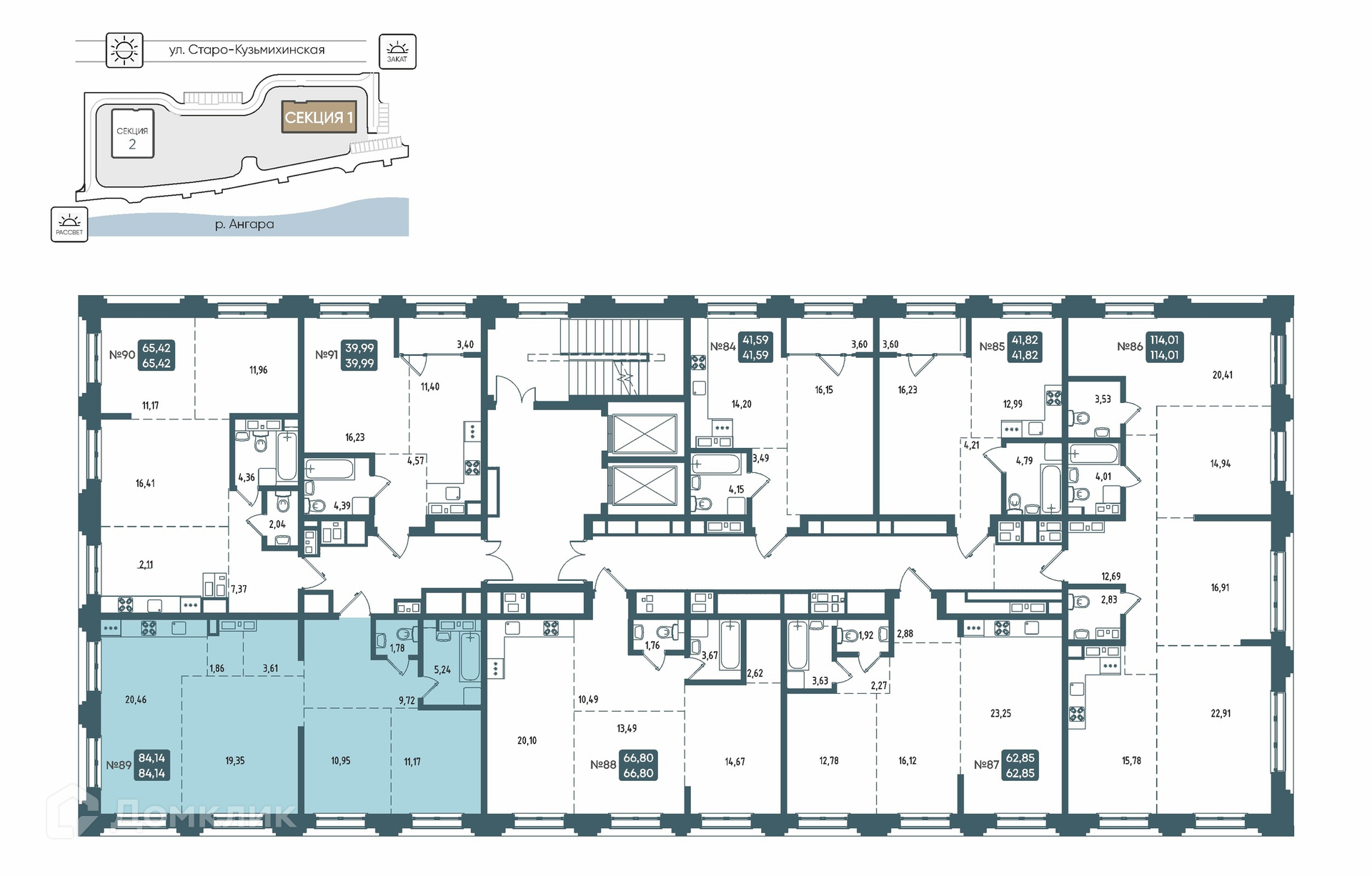
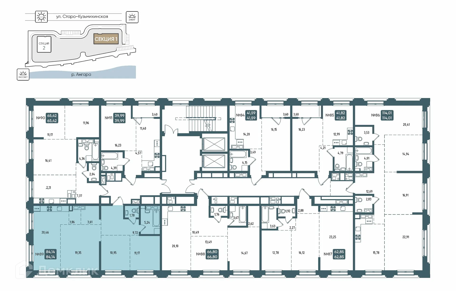
Номер кв.
Этаж
Продается 3-комнатная квартира в новом жилом комплексе "ЖК БРОДСКИЙ" 🏢. Квартира расположена на 14-м этаже 20-этажного дома. Отличный вариант для семьи.
Чтобы забронировать эту квартиру бесплатно и зафиксировать цену — свяжитесь с нами прямо сейчас! 📞
Дом бизнес-класса БРОДСКИЙ обладает завораживающими видами на реку и город, удобную локацию, сочетающую максимум приватности и одновременно превосходную транспортную доступность, выразительную архитектуру и продуманные до мелочей дизайнерские места общего доступа. Смотровая площадка на крыше только для резидентов дома «БРОДСКИЙ», продуманный двор с многоуровневым озеленением и уютными зонами отдыха и видовыми площадками с дзен-пространством. Разноформатность зон отдыха подходит для неспешных прогулок и дружеских разговоров в приватных зонах с видом на реку. Мы отделили детскую зону и вынесли за пределы двора шумные спортивные площадки, для того чтобы все способствовало максимально комфортному отдыху. Ощущение приватности и собственной исключительности на каждом шагу! Более 80% квартир дома БРОДСКИЙ могут похвастаться захватывающими видами на реку Ангару! Дом бизнес-класса БРОДСКИЙ это: Развитая инфраструктура Исторически сложившийся интеллигентный, академический облик жителей района Благоприятная экологическая обстановка Транспортная и пешеходная доступность Динамический пульс города и комфорт приватной жизни Выразительная архитектура Терраса на крыше Закрытый двор Умные технологии Внимание к важным мелочам – отдельные колясочные и велосипедные Свобода личного и квартирного пространства, благодаря просторным кладовым. 25 Квартир с эксклюзивными планировками: французский балкон пентхаус терраса окна с радиальным остеклением До 3.9 м - высота потолков в квартирах БРОДСКИЙ.
Срок сдачи: 2 кв. 2027 г.
Срок сдачи: 2 кв. 2027 г.
Площади квартир
Этажность
Класс жилья
Корпусов
Стены