Иркутск, Култукская, 16
Площадь
Жилая
Кухня
Отделка
Класс жилья
Комнат
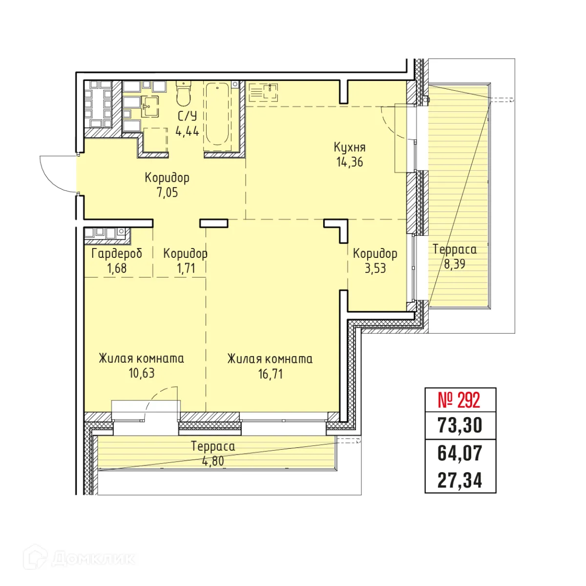
Номер кв.
Этаж
В продаже 2-комнатная квартира в современном жилом комплексе "ЖК СТРИЖИ СИТИ" 🏢. Квартира расположена на 18-м этаже 20-этажного дома. Отличный вариант для инвестиций.
Чтобы забронировать эту квартиру бесплатно и проверить актуальную стоимость — свяжитесь с нами прямо сейчас! 📞
Жилой комплекс «Стрижи Сити» — это философия жизни современного города, воплощенная в архитектурных и технологических решениях. Это новая реальность Иркутска, в которой урбанистический дизайн органично вписывается в существующий городской и природный ландшафт, изменяя, но не подавляя окружающую его застройку.
Срок сдачи: 2 кв. 2020 г.
Срок сдачи: 2 кв. 2020 г.
Площади квартир
Тип жилья
Этажность
Класс жилья
Корпусов
Стены
71%
50%
64%
79%