Иркутск, переулок Археолога Михаила Герасимова
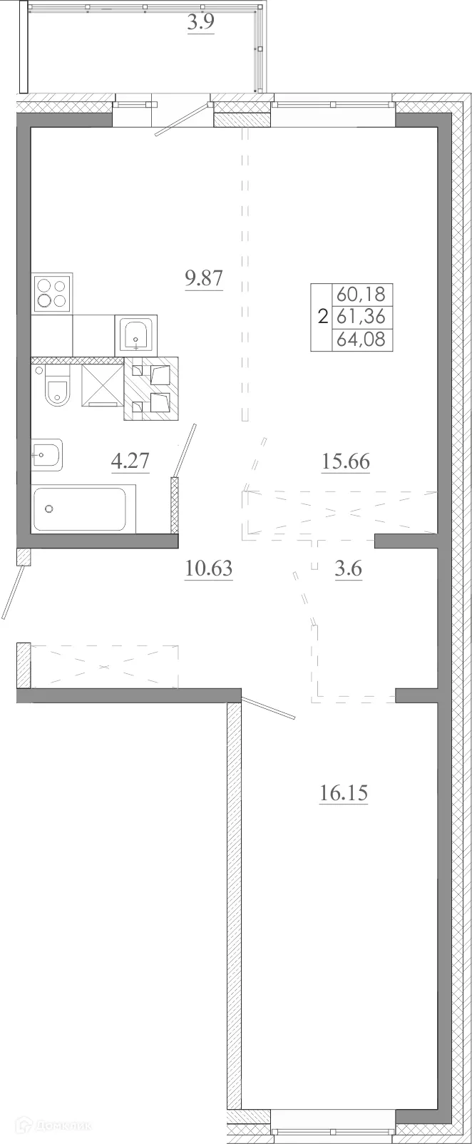
Площадь
Жилая
Кухня
Отделка
Класс жилья
Комнат
Номер кв.
Этаж
Доступна к покупке 2-комнатная квартира в современном жилом комплексе "ЖК МЕГА" 🏢. Квартира расположена на 2-м этаже 18-этажного дома. Прекрасный выбор для инвестиций.
Для бесплатного бронирования и зафиксировать цену — позвоните нам прямо сейчас! 📞
Микрорайон, масштабы которого поражают! Возможности для развития и успешной жизни каждого! Новый современный подход к строительству жилья эконом-класса: из материалов высочайшего качества с применением передовых технологий. Развитая инфраструктура: самая большая в Иркутске школа «Эволюция», два детских сада, гипермаркет «Метро», остановки общественного транспорта. Озеленение: деревья, кустарники и цветы высажены по принципу «4 сезона» и меняют окраску по очереди. Нашим жителям всегда открывается что-то новое в собственном дворе. Благоустройство для всех: площадки для детей, подростков и любителей активного образа жизни, места для спокойного отдыха пожилых людей, прогулочные променады для мамочек с колясками и семейных пар.
Срок сдачи: 4 кв. 2024 г.
Срок сдачи: 4 кв. 2024 г.
Площади квартир
Этажность
Класс жилья
Корпусов
Стены
73%
85%
58%
92%